Newbury Road, Bromley, BR2
For Sale

Features

  • Victorian End of Terrace
  • Two Reception Rooms
  • 58' Rear Garden
  • 0.2 Miles From Bromley South
  • Close Proximity to Popular Schools
  • Two Double Bedrooms
  • Upstairs Bathroom
  • Garden Storage
  • Town Centre Location
  • Potential to Extend (STPP)
  • Council Tax Band: C

Full Details

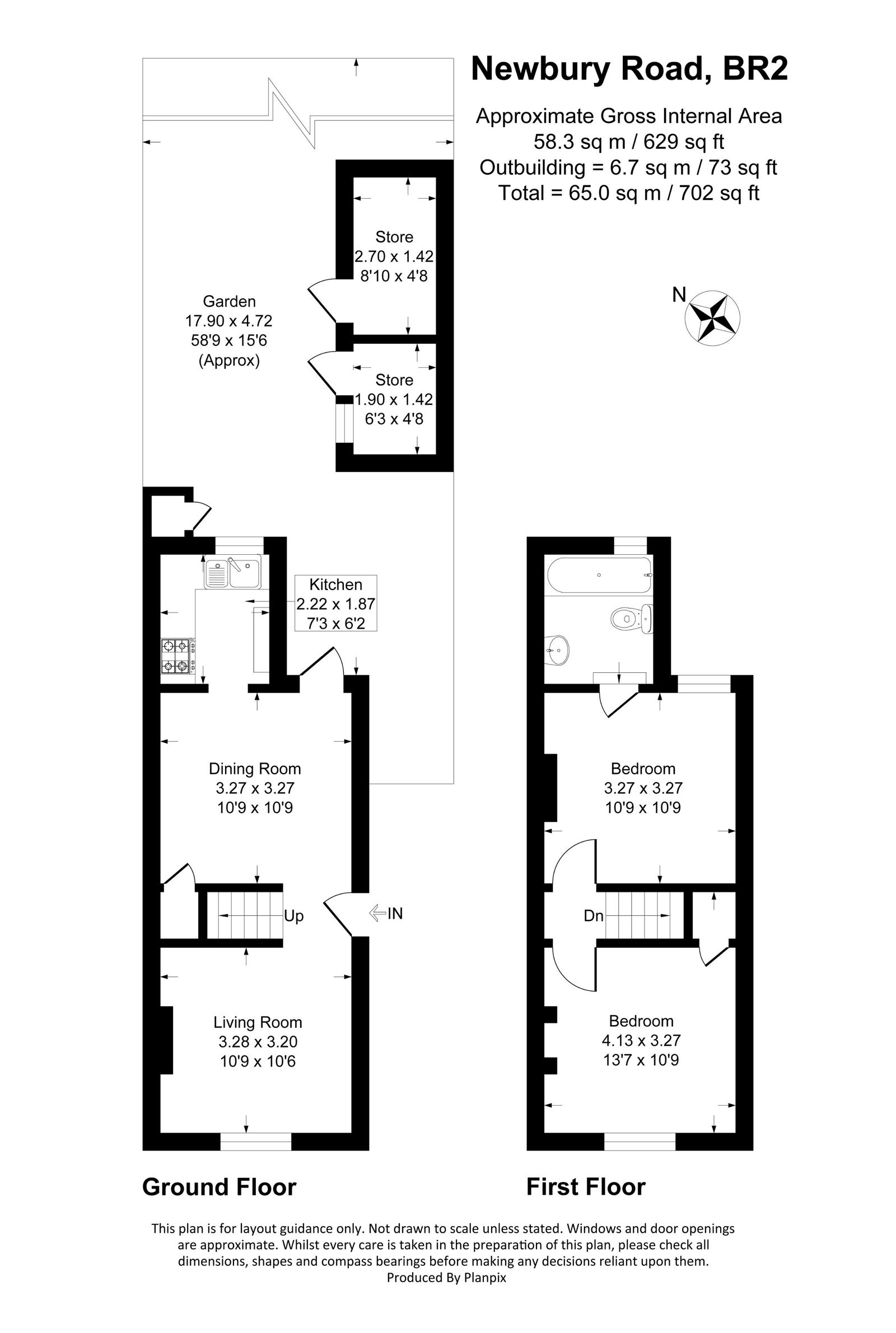
This characterful two bedroom end of terraced Victorian home is ideally located in the heart of Bromley Town Centre, just 0.2 of a mile from Bromley South Station on a popular and sought after residential road.

Benefitting from gas central heating and double glazed windows the accommodation comprises as follows; to the ground floor, entrance hall leading to the front reception room, dining room and kitchen. To the first floor are to be found two double bedrooms and the bathroom located off the second bedroom. Externally the rear garden extends to approximately 58’ and features a decked area and two garden outbuildings, one with lighting and power. To the front of the property there is a small front garden that is paved and side access to the rear. Residents can apply for parking permits for the road.

Bromley Town Centre offers many amenities including various shopping facilities, restaurants, cafe’s, bars, gyms a library and theatre. Bromley South Station provides fast services to London Victoria and other central terminals also. St Marks Primary school is within very close proximity and secondary schools are also nearby. We strongly advise your internal inspection to appreciate the accommodation on offer.


EPC Rating: D